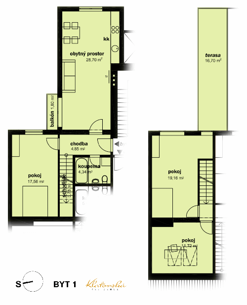
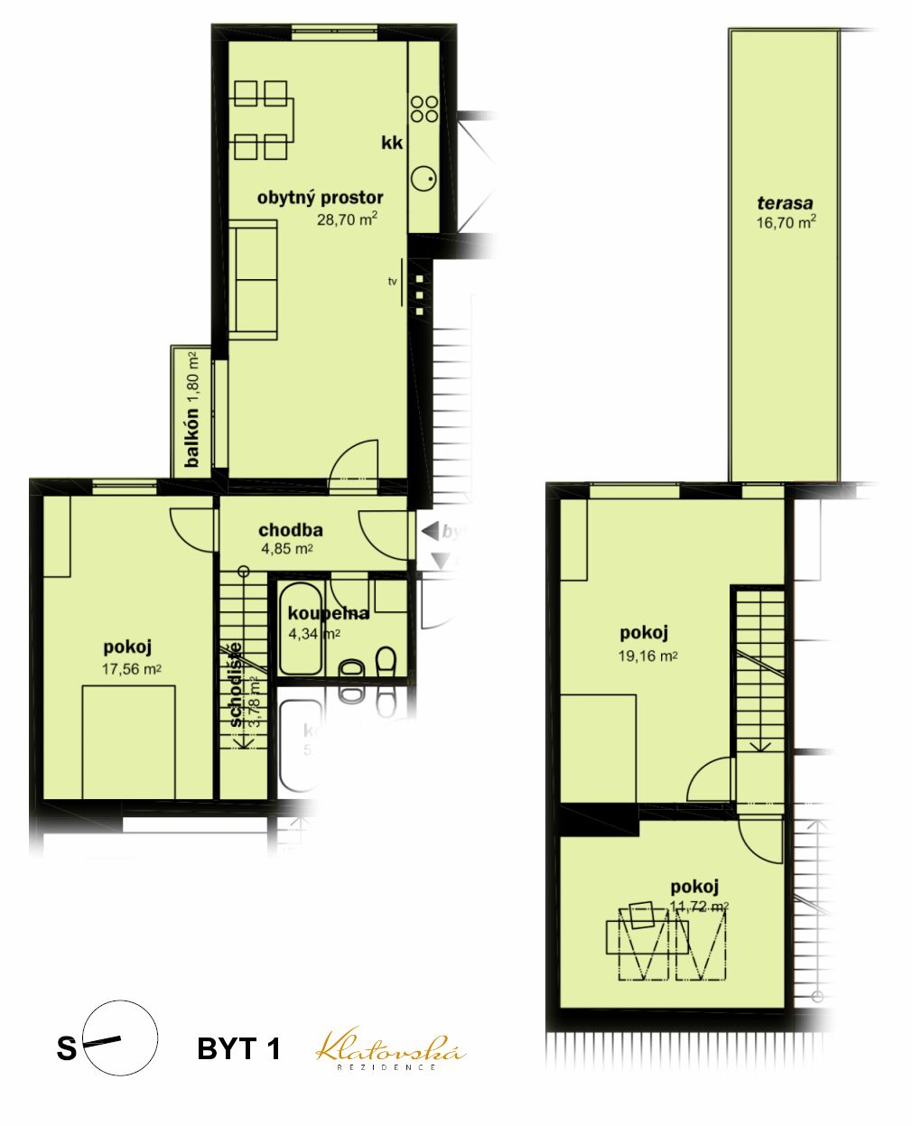
Byty
Byt 1
Plocha místností
Název místnosti
Plocha [m2]
Obytný prostor
28,70
Pokoj
17,56
Pokoj 2
11,72
Pokoj 3
19,16
Koupelna
4,34
Schodiště
3,78
Chodba
4,85
Celkem
90,11
Balkón
1,80
Terasa
16,70
Máte zájem o tento byt? Kontaktujte nás

